Срочная разработка. Бесплатное устранение замечаний. Внутренний контроль качества выпускаемой документации. Работаем в ЭДО.
ППР на такелажные работы в Екатеринбурге
От 3х дней. От 35 тысяч рублей. Бесплатное устранение замечаний. 100% гарантия согласования.
Сотрудники компания ППР 48 является экспертами на рынке оказания услуг по разработке проектов такелажных работы, схем строповок и складирования материалов и оборудования, проектов работы подъемными сооружениями.
Что такое ППР на такелажные работы и для чего он нужен

Проект производства работ на такелажные работы описывает комплекс мер, необходимых для выполнения процесса подготовки и установки оборудования с использованием тросов, канатов, цепей и других подъемных механизмов. Эти работы выполняются для перемещения грузов, оборудования и материалов на стройплощадке или внутри здания.
Проект производства такелажных работ должен включать в себя детальное описание процессов, необходимых материалов и оборудования, а также мер по безопасности производства такелажных работ.
Особенности разработки ППР на такелажные работы компанией ППР 48
Среди особенностей подготовки документации можно выделить:

-
Учет грузоподъемных характеристик техники
При разработке ППР специалисты компании «ППР 48» обязательно учитывают технические параметры и ограничения всех используемых подъемных механизмов: автокранов, башенных кранов, кран-балок, лебедок, тельферов и других средств механизации. Это обеспечивает выбор оптимального оборудования под конкретные условия объекта и специфику перемещаемых грузов. -
Расчеты строп и грузозахватных приспособлений
По необходимости специалисты компании выполняют расчеты усилий в стропах, траверсах, захватах и других приспособлениях, возникающих при различных этапах работ. Такой подход гарантирует правильный выбор средств и безопасность всего процесса. -
Проверенные решения и индивидуальный подход
Компания «ППР 48» опирается на собственный опыт и тщательно подбирает такелажные методики в зависимости от условий. Каждый проект индивидуален и требует особого внимания к деталям. -
Комплексный охват задачи
В составе ППР обязательно прорабатываются мероприятия по охране труда, технике безопасности и экологической безопасности, что соответствует современным нормативным требованиям и интересам заказчика. -
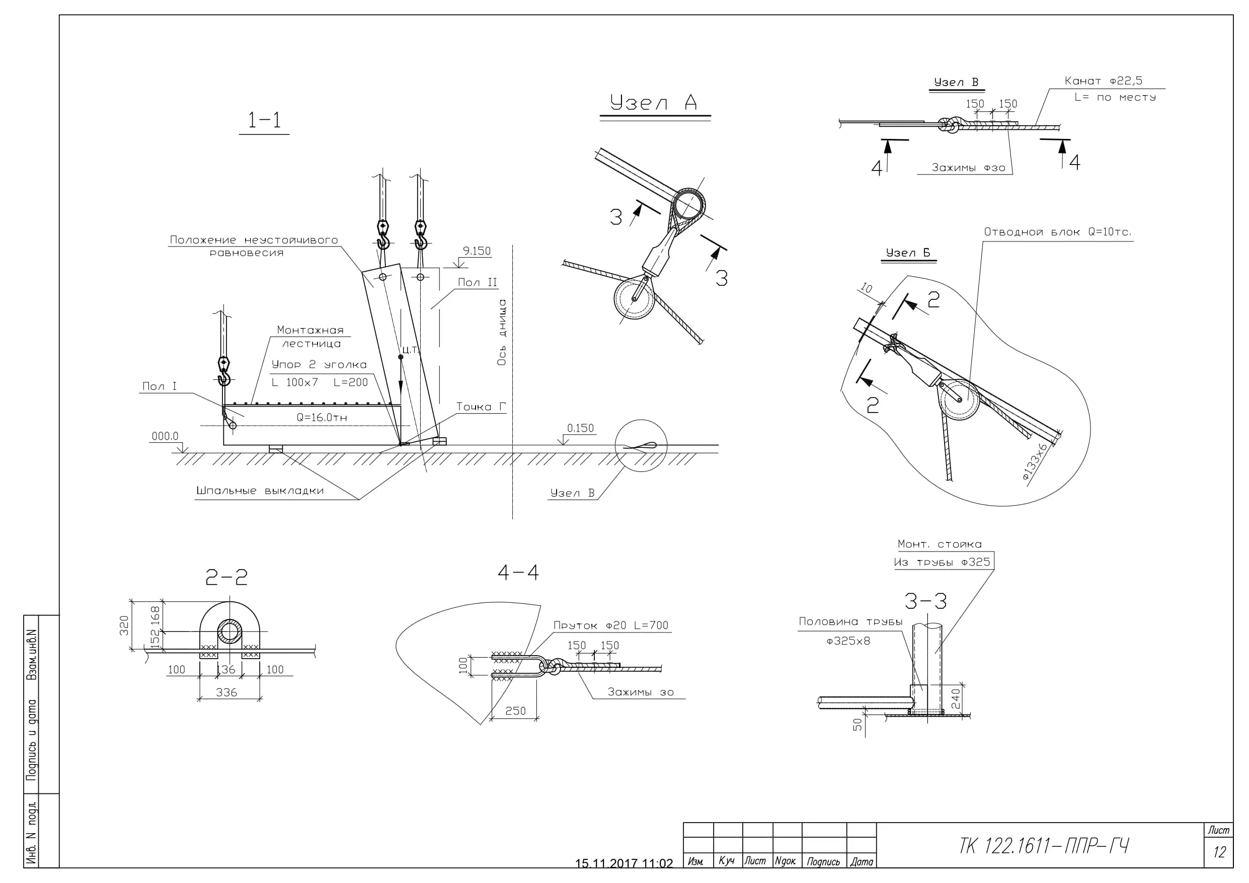
Подробная графическая часть
Особое внимание компания уделяет графическим материалам. В ППР разрабатываются и включаются подробные схемы:- строповки грузов — показывают способ закрепления такелажных приспособлений для каждого элемента;
- складирования грузов — схемы размещения оборудования и материалов на строительной площадке;
- траектории перемещения — подъем, перемещение и установка груза.
Исходные данные для ППР на такелажные работы
Вот список исходных данных для разработки проекта производства работ (ППР) на комплекс такелажных работ (ПРР) с применением подъемных сооружений (ПС):

- Перечень подъемных сооружений (краны, подъемники и т.д.) с описанием их характеристик.
- Паспорта на подъемные сооружения.
- Чертежи подъемных сооружений (в DWG или хотя бы в сканированном виде).
- Номенклатура погружаемых/разгружаемых материалов и оборудования с указанием их масс, размеров и т.д.
- Паспорта и чертежи погружаемого/разгружаемого/заменяемого оборудования, информация о массах грузов.
- Информация о том, какие подъемные сооружения задействованы при выполнении технологических операций с какими типами грузов (распределение: тип ПС — типы грузов).
- Планы и разрезы производственных цехов, открытых площадок и т.д. (в зависимости от случая) — в формате DWG или хотя бы в сканированном виде.
- Медиа материалы (фото, видео), относящиеся к технологическим процессам и производственным цепочкам (общий план, отдельные ПС, оборудование, узлы, агрегаты, производственные линии и т.д.).
- Номенклатура грузозахватных приспособлений, паспорта на них, их технические характеристики (можно фото шильдиков) — стропы, траверсы и т.д.
- Техническое задание на выполнение ТК и ППР на выполнение ПРР (если есть).
- Внутренние регламенты структуры, на территории которой располагается объект (если необходимо).
Примечание: Желательно предоставлять документы в редактируемых форматах (DWG, Word).












































