Лицензия СРО. Срочная разработка. Работаем в ЭДО.
Разработка ППР на монтаж-демонтаж лифтов от ППР48 в Екатеринбурге
От 30 тысяч рублей. От 3х дней. Бесплатное устранение замечаний. 100% гарантия согласования проекта.
Мы можем взять на себя всю документацию под ключ. Кроме ППР можем заняться подготовкой комплекта исполнительной документации на вашем объекте.
Особенности разработки ППР для монтажа и замены грузовых лифтов
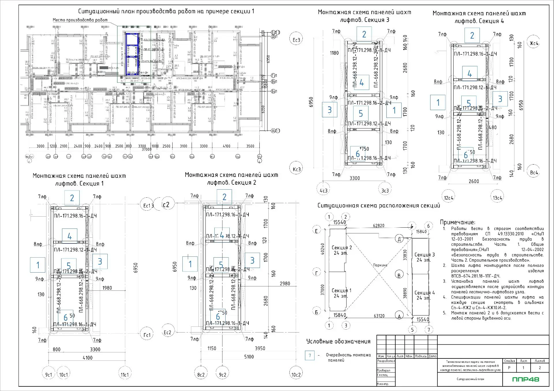
Разработка ППР для монтажа и замены грузовых лифтов всегда связана с тщательным подбором организационно-технологических решений, которые должны соответствовать не только исходному проекту, но и особенностям выбранной технологии проведения работ.
В каждом проекте учитываются способы демонтажа старого оборудования (при замене), актуальные модели лифтов, а также конструктивные детали шахты и ствола, определяющие последовательность и специфику операций.
Как правило, тяжелые элементы оборудования, включая грузовую кабину, противовесы, направляющие, двери и лебедки, монтируются и демонтируются с применением подъемных механизмов — грузоподъемных талей, лебедок и другого специализированного оборудования. Поэтому в состав такого ППР обязательно включаются технологические карты (ТК) на работы с применением выбранных грузоподъемных средств, схемы расстановки техники и вспомогательных приспособлений, а также расчеты опасных зон и мероприятия по обеспечению безопасности на объекте.
В ППР для новых грузовых лифтов особое внимание уделяется схемам подачи массивных элементов к точкам монтажа, устройству временных страховочных опор, технологическим картам на монтаж направляющих, лебёдок, кабины и электромонтажные работы, а также выполнению работ на высоте и в ограниченных пространствах — с обязательной проработкой схем организации высотных работ, применением систем страховки, индивидуальных средств защиты от падения (монтажные пояса, каски, анкерные точки, перильные ограждения) для персонала.
Стоимость и сроки разработки ППР на монтаж и замену лифтового оборудования
Стоимость и сроки разработки ППР на монтаж или замену лифтового оборудования могут отличаться в зависимости от сложности работ и срочности выполнения. Базовая стоимость разработки ППР для лифтового оборудования начинается от 40 000 рублей. Итоговая сумма формируется с учётом особенностей вашего объекта, конструктивной сложности оборудования и необходимости срочного выполнения.
Срок подготовки такой документации — от 4 рабочих дней. Точный срок определяется индивидуально для каждого проекта и зависит от исходных данных, а также специфики объекта.
Сроки выполнения ППР:
- Стандартное лифтовое оборудование: разработка при обычной срочности — 4 рабочих дня;
- Оборудование повышенной сложности: срочная разработка — от 4 рабочих дней;
- Уникальные или особо опасные объекты: стандартные сроки — 6 рабочих дней.
Мы разрабатываем ППР для любых типов объектов: жилых зданий, промышленных и уникальных сооружений, включая объекты с особыми требованиями по безопасности при монтажных работах.
Особое внимание в таких ППР уделяется организации работ на высоте, обеспечению персонала страховочными системами и всеми необходимыми средствами индивидуальной защиты от падения с высоты.
Согласование с заказчиком осуществляется на каждом этапе: промежуточные версии ППР предоставляются для проверки, все доработки по замечаниям включены в договорную стоимость оказания услуг.
Почему разработку ППР на монтаж и демонтаж лифтов лучше доверить нам
Разработка ППР для монтажных и демонтажных работ с лифтами требует детального знания технологий, правил техники безопасности и специфики работы с лифтовым оборудованием. Мы предлагаем комплексный подход, ориентированный на результат заказчика и безопасность рабочих.
Наши преимущества:
- Узкая специализация:
Мы разрабатываем ППР с учётом всех особенностей монтажа и демонтажа лифтов: от последовательности работ по демонтажу старого оборудования до нюансов установки современного лифта любой конструкции.
- Гарантия безопасности:
Особое внимание уделяем вопросам организации работ на высоте, обязательному использованию страховочных систем, подбору и применению средств индивидуальной защиты от падения. Все схемы и технологические решения нацелены на максимальную безопасность персонала.
- Соблюдение нормативов:
Наши ППР соответствуют действующим требованиям Ростехнадзора, СП и ГОСТ, что облегчает согласование и исключает претензии контролирующих органов.
- Оперативность:
Разрабатываем документацию в кратчайшие сроки, включая работы повышенной сложности и объекты с нестандартными параметрами.
- Сопровождение и консультации:
Мы сопровождаем проект на всех этапах, своевременно реагируем на вопросы и предоставляем необходимые корректировки в ППР без задержек.
Доверьте нам подготовку ППР на монтаж и демонтаж лифтового оборудования — вы получите качественную, актуальную и полностью безопасную технологическую документацию, которая пройдёт согласование с первого раза.




































