Виды ППР на фасад
ППР на монтаж и устройство фасада разрабатывают с учетом требований нормативных документов, определяющих правила выполнения работ по его составлению и проектированию.
Существует несколько основных видов ППР на фасад:
- ППР на вентилируемый фасад
- ППР на устройство и ремонт мокрого фасада
- ППР на покраску фасада здания
- ППР на демонтаж подвесных вентилируемых фасадов
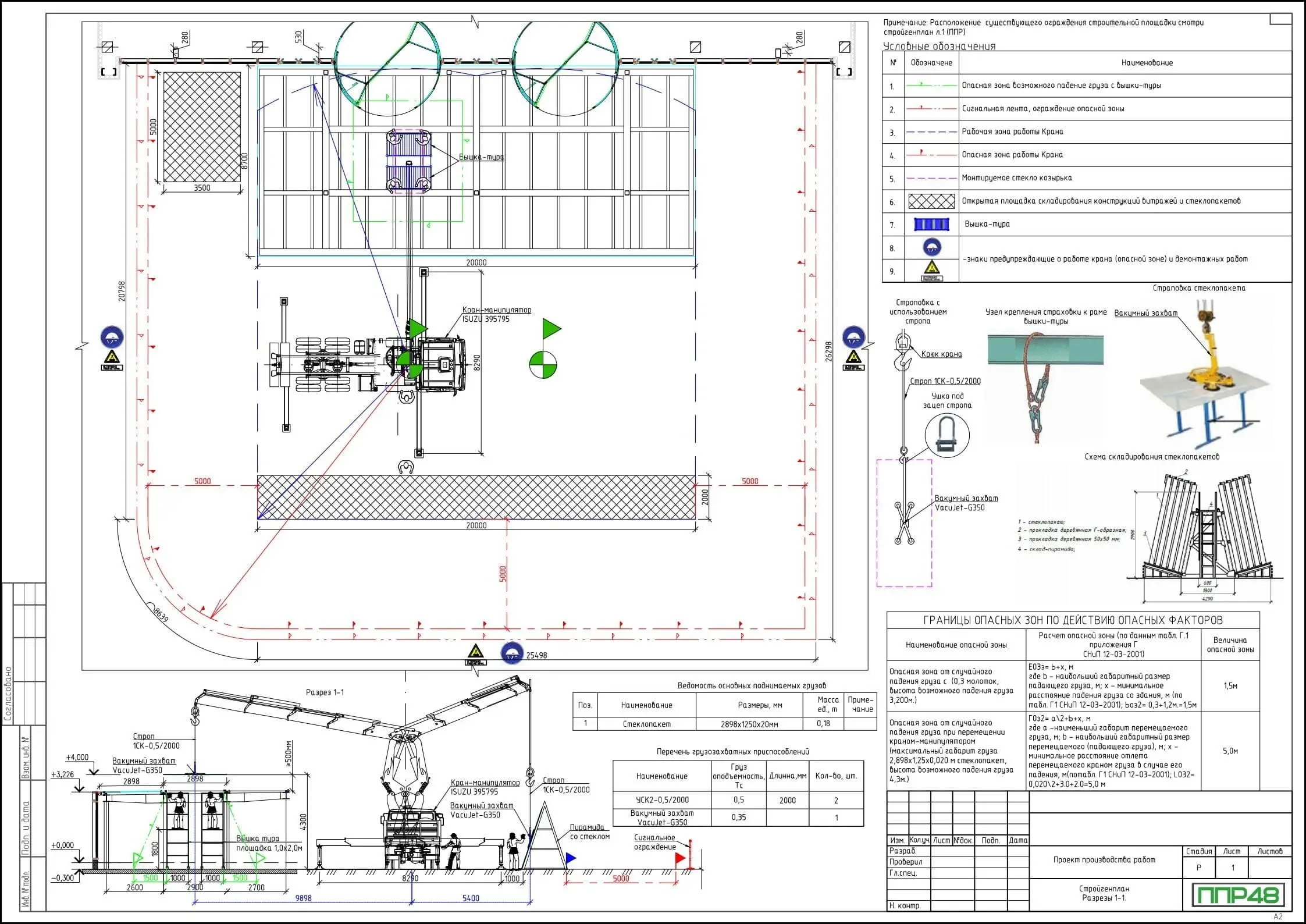
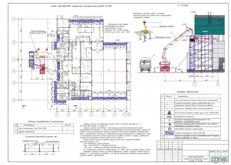
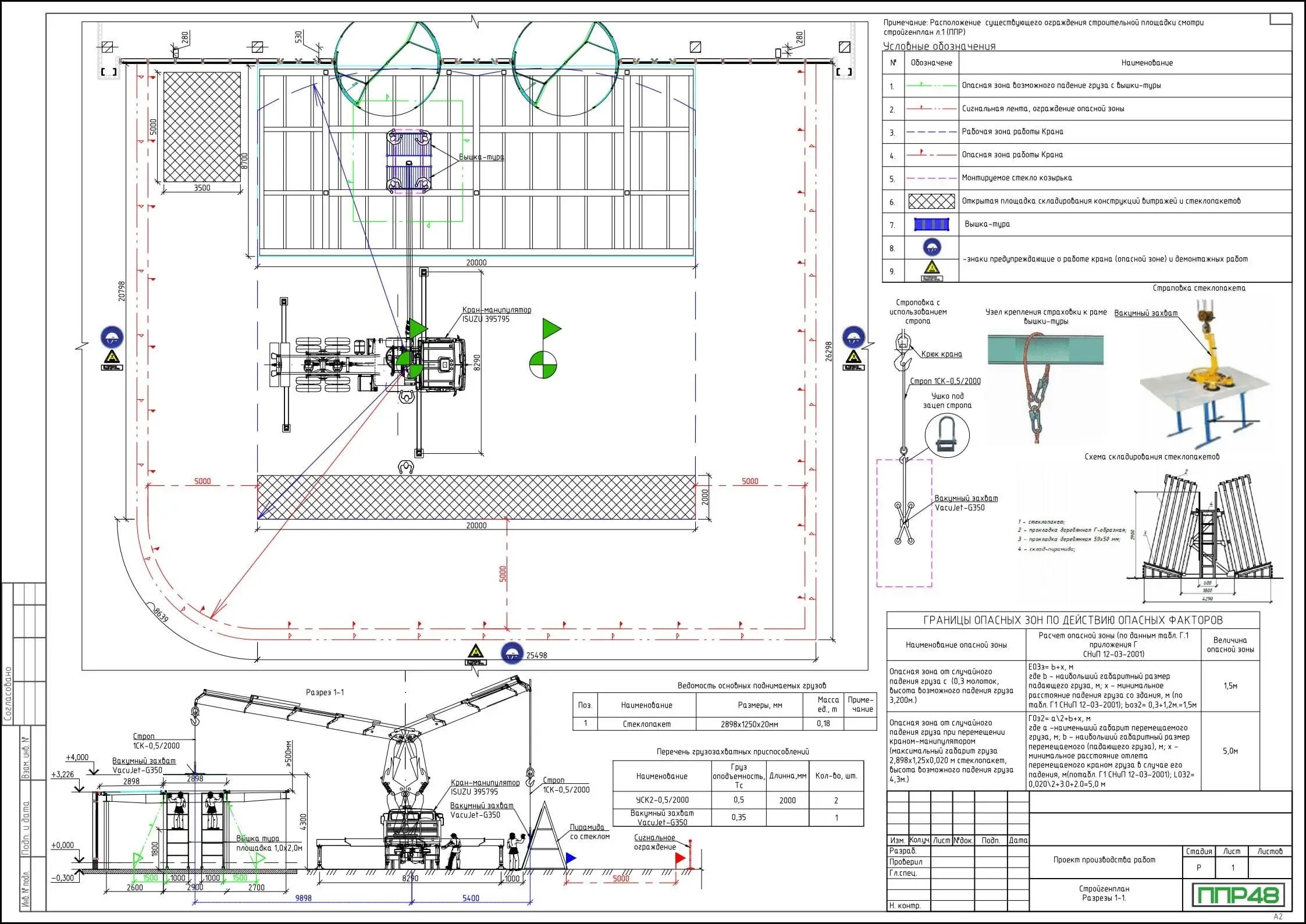
- ППР на монтаж алюминиевых витражей
- ППР на ремонт фасада с лесов
- проект монтажа навесных систем (НВФ);
- устройство сухих отделочных покрытий;
- устройство мокрого фасада;
- установка навесных светопрозрачных конструкций (замена стекла);
- комбинированный ППР на фасадные работы, в состав которого включают все либо несколько из вышеперечисленных видов технологических операций, в том числе работы по утеплению фасада.
В некоторых случаях возникает необходимость в сооружении строительных лесов. Леса монтируют по технологической карте на установку средств подмащивания.



















































